Tiuna Grove

Wedged between two and four level apartment buildings, this Elwood renovation maintains the integrity of the original early 20th Century Edwardian residence within a Heritage Overlay. Adding to works completed in 2007 by GAA, the project further enhances the overall property with new amenities and unique upper-level rooftop addition.

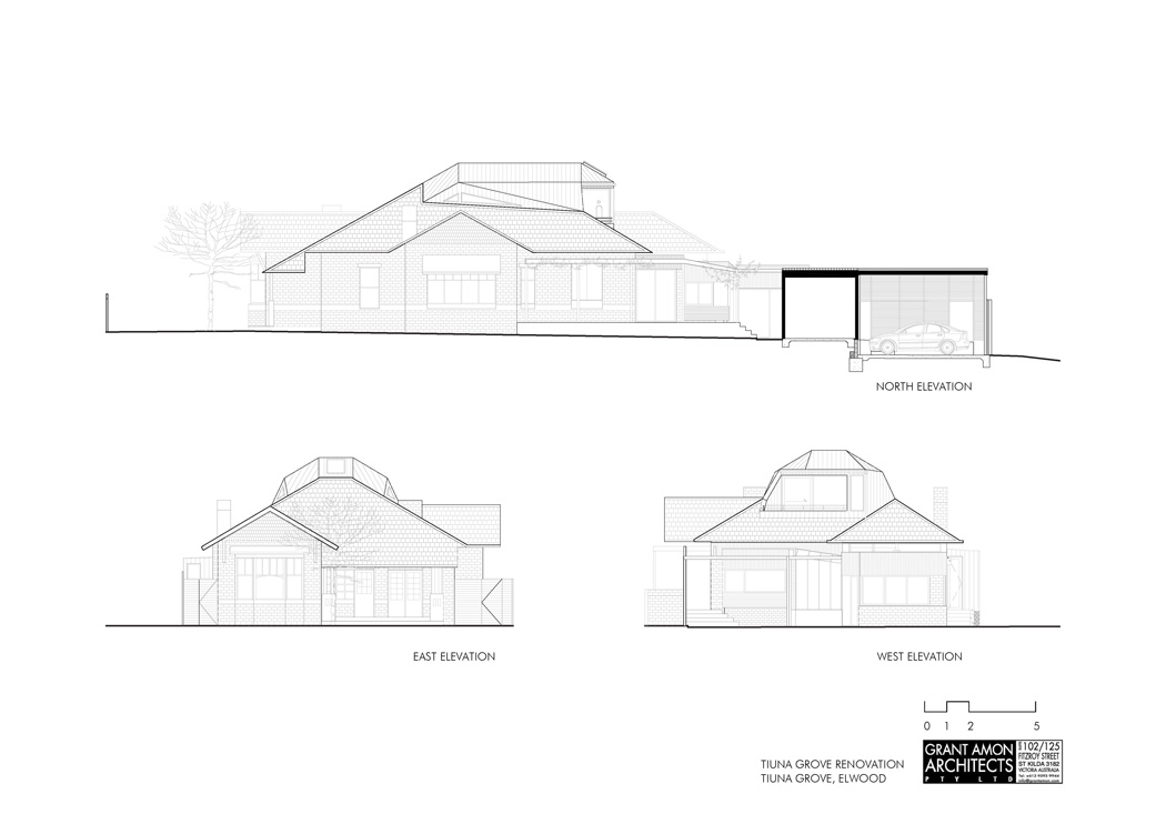
The project is essentially a refinement of an earlier renovation completed to the residence some 18 years ago by Grant Amon Architects. Involving renovation and additions to the ground level Bathrooms, Kitchen and Laundry, the new works also required careful renovations to the substantial roof space above to create a Guest Room attic-style addition that respected the existing pitched tiled roof.  Inspired by ideas of donning a helmet or hat, the attic addition draws connections to the roof forms by almost organically growing out of the roof, avoiding the often-clumsy box like additions that typically predominate these houses.  The folding, shaping and carving out of form aptly suits the idiom “if the cap fits, then wear it.” 

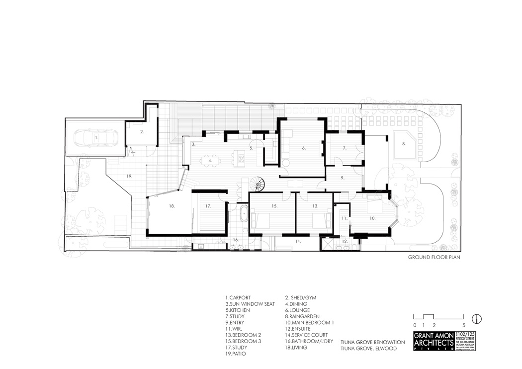
The overall site has been refreshed, with a new timber battened car stacker Carport, Gym, Patio pergolas and general landscaping improvements for the new owners.

The new Kitchen re-fit, now includes a large Pantry, new finishes and equipment and the relocated Laundry closer to the rear yard. New Bathroom/ En Suites enhance the four Bedrooms which all have new robes and storage. The teenage son snaffled the upstairs Guest room, with its own En Suite, Living area and deck, much to his delight. Externally, formal and informal landscaping has been completed and the original grape vine clinging to separate pergolas are now connected.  The new work now compliments the previous renovation to complete this modestly large family home.

In all, the recent renovations further enhance the previous renovations and bring the residence to current living expectations and sustainable principles, including water management, solar panels, heat pumps, insulation and other features.

With two street frontages, and existing apartments on either side, the design needed work in all directions, accounting for heritage issues, setbacks, overlooking, sustainability agenda and materiality where any new additions settled well into the neighborhood context and the existing residence. 

Tiuna Grove
Tiuna Grove
Tiuna Grove
Tiuna Grove
Tiuna Grove
Tiuna Grove
Tiuna Grove
Tiuna Grove
Tiuna Grove
Tiuna Grove
Tiuna Grove
Tiuna Grove
Tiuna Grove
Tiuna Grove
Tiuna Grove
Tiuna Grove
Tiuna Grove
Tiuna Grove
Tiuna Grove

© 2026 Grant Amon