South West Music Regional Conservatorium

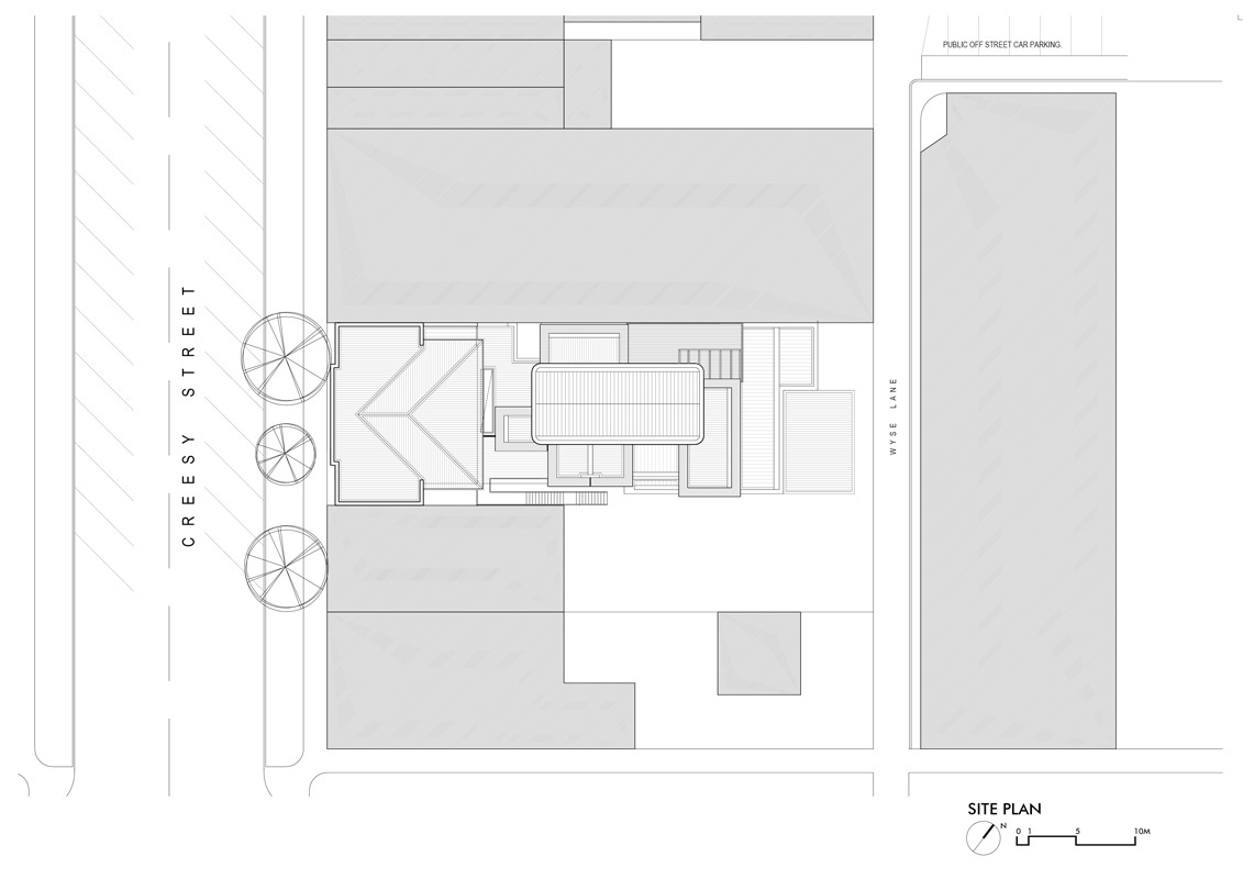
The design for the South West Music Regional Conservatorium (SWMRC) has been based on providing a building renovation and re-furnishment suitable for the particular use of SWMRC and the broader local community. The re design and upgrade to the existing premises for a multipurpose and flexible program, incorporates teaching and recording studios, an expanded auditorium for 150 patrons, foyer gallery, administration, guest accommodation, improved amenities, and access (new lift) to current standards for this type of building usage.

The existing Art Deco style previous bank building features have been kept as far as possible, especially to the upstairs, with detailed fireplaces, glazed doors and trims being retained. The new lift will neatly fit into the upstairs and provide full DDA access to both levels of operation.

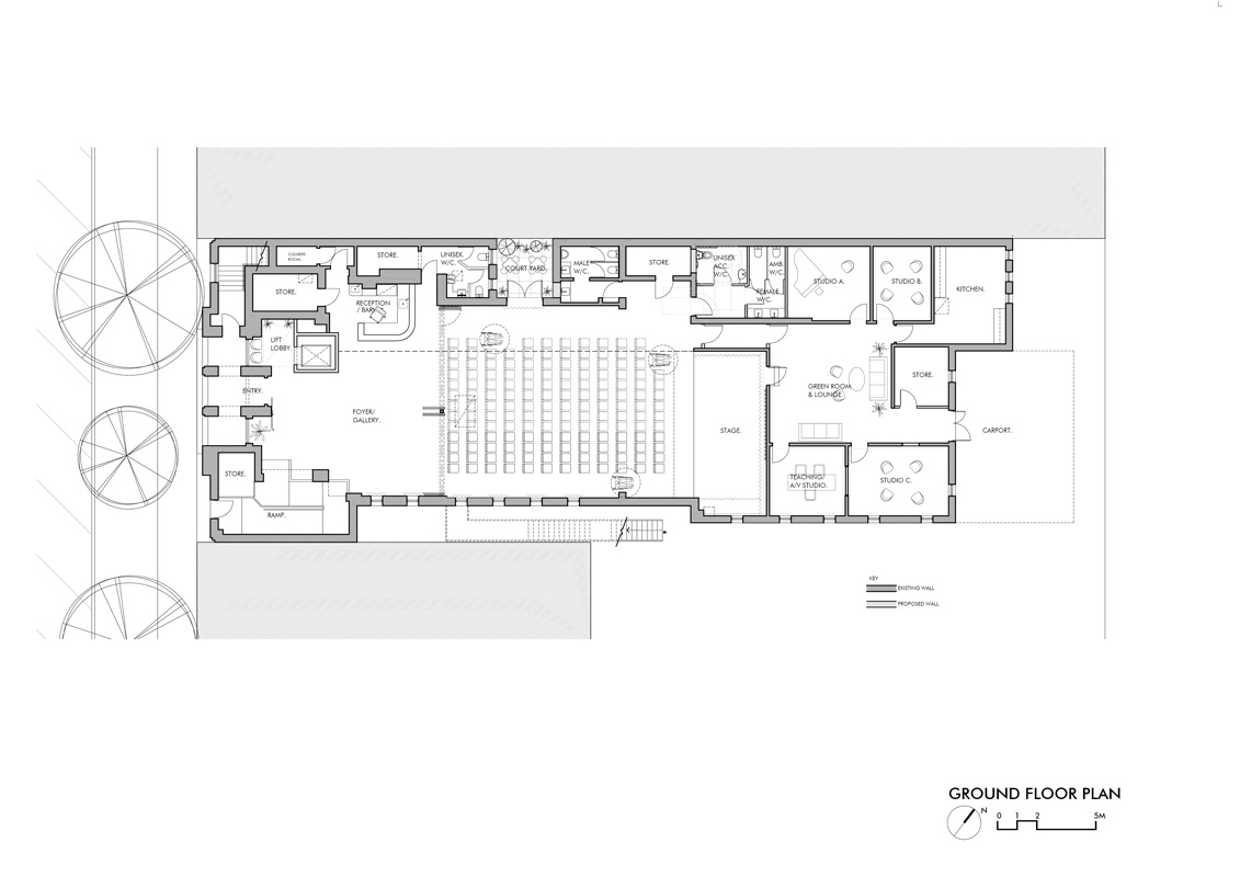
The Ground Floor will feature a new Foyer / Gallery function space which is acoustically separated from the Main Auditorium enabling a community focused entry for Reception, events, information, and other flexible use. The main Concert / Auditorium space and Stage are increased in size, fully set up with new Audio / Visual and Lighting / Projection to suit a multi-use small Theatrette. To the rear existing Studios and Green Room are re modelled and upgraded to suit extra Studios and recording use. New amenities suitable for increased patronage and DDA use are provided.

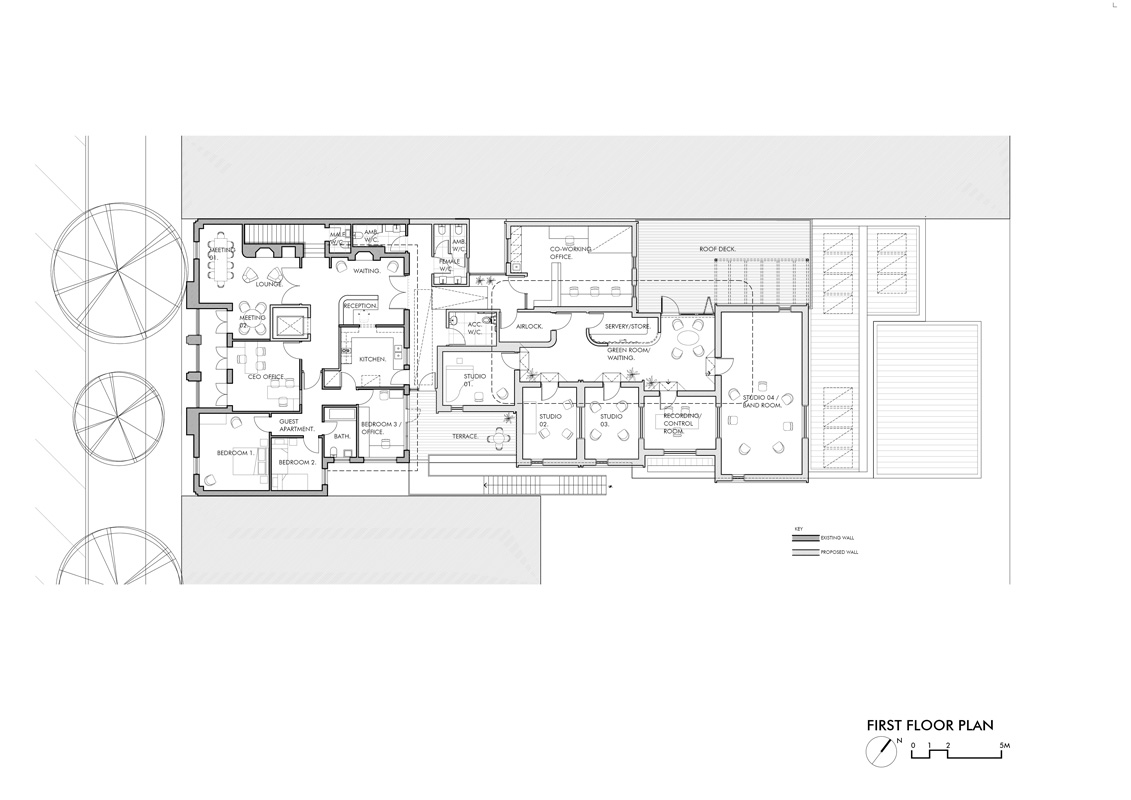
The Upper Level features modifications to the Existing building, new Reception, meeting areas and Office usage and retention of the existing 3 Bedroom apartment for guest accommodation and occasional office usage when required. The new additions will house more amenities, Office and an acoustically separated practice and recording Studios wing, with spill out Decks. The new coloured Studios are seen as a prefabricated Pod shape that can be reproduced and added if needed. The Studio Pods are conceptually wrapped in translucent cladding that will be lit up and glow at night when in use, thus providing a strong visual connection to the surrounds about the SWMRC and its operation.

New sustainable design features such as solar panels, rainwater collection, better insulation and acoustic control, material and fitting selection and ongoing building operation will be vastly improved on the current situation.

The overall concept is the provide a suitable and respectful upgrade to the existing old Bank building and to energize the refurbished Conservatorium with a great new concert space, facilities and exciting new studios that will all connect back to the many user groups and community in general.

Perhaps, something to write a song about….

South West Music Regional Conservatorium
South West Music Regional Conservatorium
South West Music Regional Conservatorium
South West Music Regional Conservatorium
South West Music Regional Conservatorium
South West Music Regional Conservatorium
South West Music Regional Conservatorium
South West Music Regional Conservatorium
South West Music Regional Conservatorium
South West Music Regional Conservatorium
South West Music Regional Conservatorium
South West Music Regional Conservatorium
South West Music Regional Conservatorium
South West Music Regional Conservatorium
South West Music Regional Conservatorium
South West Music Regional Conservatorium

© 2026 Grant Amon